Nu är det äntligen dags att hyra ut nya lägenheter på Gruddvägen 11! Den tidigare förskolan har byggts om till moderna och trivsamma bostäder i ett lugnt och naturnära område.
De ombyggda lägenheterna består av:
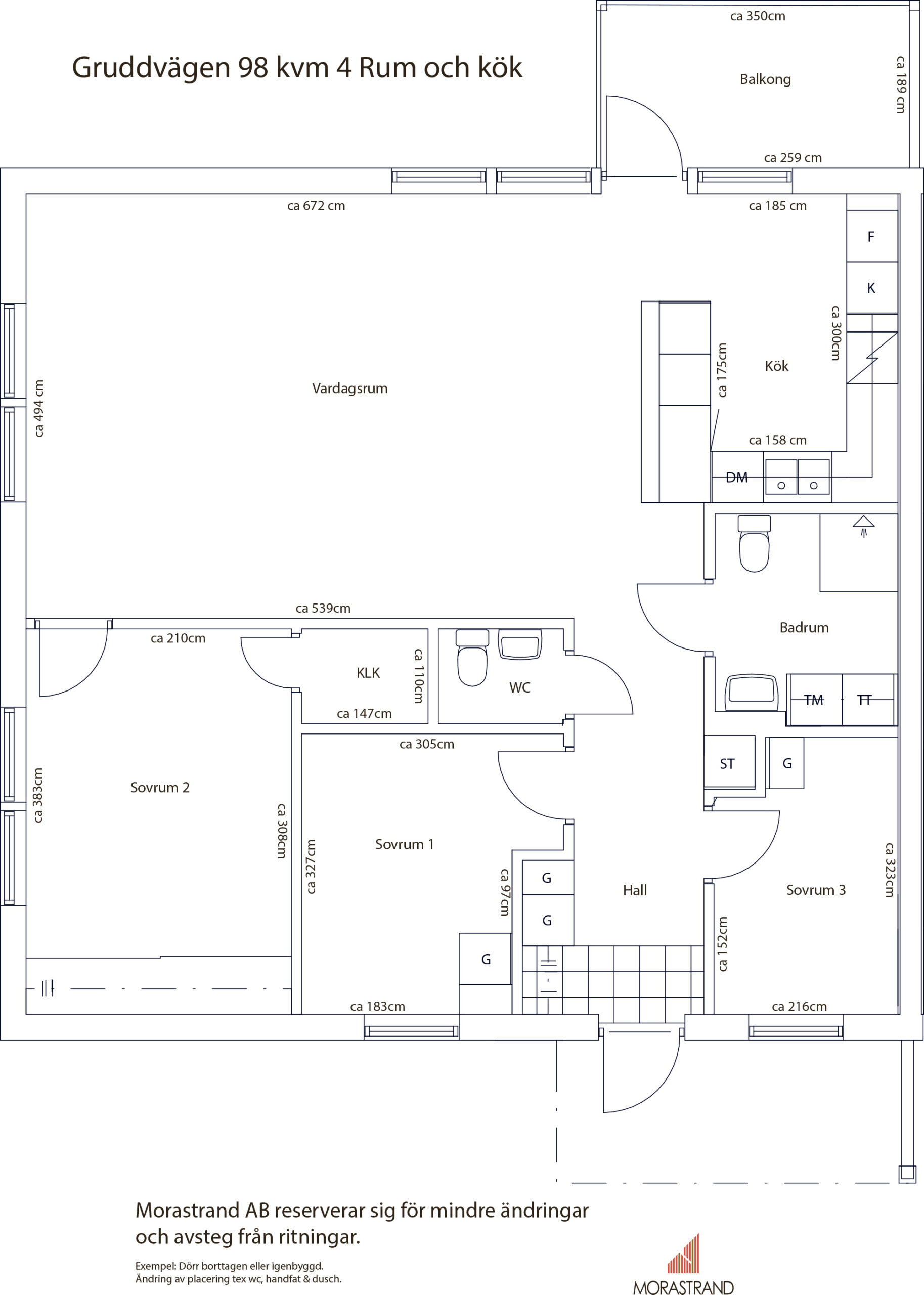
- 1 st 4 rok
- 3 st 3 rok
Bostäderna är belägna i området Gruddbacken, som ligger i vacker miljö i Noret med närhet till Norets Köpcentrum. Här bor du med naturen runt knuten samtidigt som service och handel finns på bekvämt avstånd.
Endast cirka 1 km från området ligger badplats och båthamn vid Sanda – perfekt för dig som uppskattar närhet till vatten och friluftsliv.
Gruddbacken består av 27 lägenheter. Bostadsområdet erbjuder både enplans- och tvåvåningshus utan hiss och skapar en småskalig och trivsam boendemiljö.
Välkommen med din intresseanmälan!





